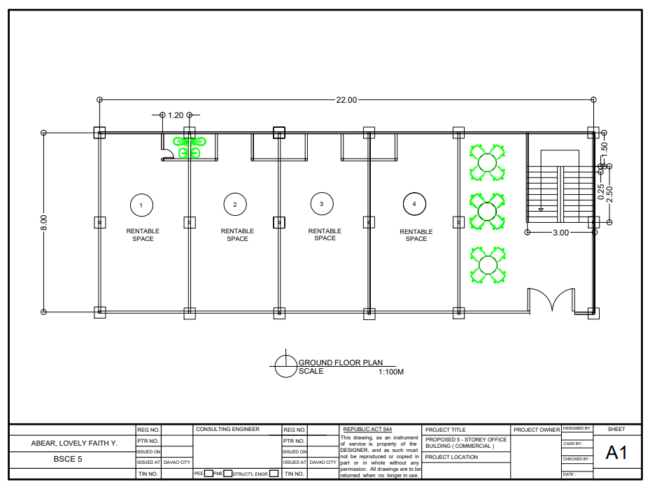
2d AutoCAD
Here’s a glimpse into my student project, where I made a detailed plan for a 2-storey commercial building from architectural to structural aspects.
As a license civil engineer, my tasks are to plan and design various infrastructure projects, applying engineering principles and regulations. Here are the sample of my detailed works.